Découvrir le bien

Propriano (20110) DERNIER APPARTEMENT NEUF T4 à PROPRIANO DANS LA RÉSIDENCE "TARA"

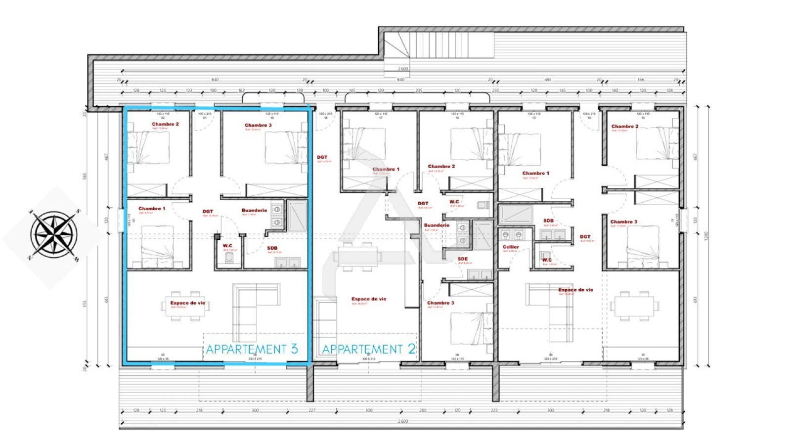
Réf : 25-05-128-NA 459 800 € Frais d'agence inclus

CASA CHA Immobilier® partenaire du réseau Interkab Porto-Vecchio, vous propose en EXCLUSIVITÉ un bien situé à Propriano (Google Earth), sur la côte ouest de la Corse du Sud. À moins de 5 minutes des plages et de son port de plaisance, proche de toutes les commodités, ce bien se trouve dans une très jolie résidence sécurisée de 2025 comprenant 6 appartements.

Ce programme se compose de 3 appartements en rez-de-jardin et 3 en rez-de-chaussée proposant 2 voire 3 chambres, offrant confort, accessibilité et qualité de vie.

Cet appartement T4 est prolongé par une grande terrasses tournée vers la mer offrant des vues spectaculaires sur le golfe du Valinco et le relief montagneux environnant. Le +, cet appartement est vendu avec un box privatif de 15m².

Que ce soit pour une résidence principale ouverte au PTZ, un pied-à-terre en Corse du Sud ou un investissement, ces appartements représentent une opportunité rare dans un secteur très demandé.

Propriano séduit par son cadre de vie exceptionnel, son port, ses plages, ses commerces et son ambiance dynamique toute l’année. Ici, tout se fait à pied, dans un environnement à la fois pratique et agréable.

Acheter sur plan, c’est aussi l’avantage de bénéficier d’un logement neuf aux frais de notaire réduits, aux normes actuelles et avec des espaces optimisés pour un confort durable. OFFERT: le choix des carrelages

Mot du propriétaire: Petite résidence chaleureuse construite par une entreprise familiale locale pour votre futur havre de paix.

Les informations sur les risques auxquels ce bien est exposé sont disponibles sur le site Géorisques : www.georisques.gouv.fr

Agence immobilière immatriculée au RCS d’Ajaccio sous le numéro 949401459 - Carte T n° 20012023000000007


CASA CHA Immobilier®, a partner of the Interkab Porto-Vecchio network, exclusively offers a property located in Propriano (Google Earth), on the west coast of Southern Corsica.

Less than 5 minutes from the beaches and its marina, and close to all amenities, this property is situated in a very attractive, secure residence scheduled for completion in 2025, comprising 6 apartments.


This development consists of 3 garden-level apartments and 3 ground-floor apartments, each offering 2 or 3 bedrooms, providing comfort, accessibility, and a high quality of life.


This apartment T4 features a large terrace facing the sea, offering spectacular views of the Gulf of Valinco and the surrounding mountains. The plus, this apartment is sold with a private 15m² garage.


Whether for a primary residence eligible for the zero-interest loan (PTZ), a pied-à-terre in Southern Corsica, or an investment, these apartments represent a rare opportunity in a highly sought-after area.


Propriano is captivating thanks to its exceptional living environment, its port, beaches, shops, and vibrant atmosphere year-round. Here, everything is within walking distance, in a convenient and pleasant setting.


Buying off-plan also offers the advantage of a brand-new home with reduced notary fees, built to current standards, and with optimized spaces for lasting comfort. FREE: choice of tiles.


A word from the owner: A small, welcoming residence built by a local family business for your future haven of peace.


Information on the risks to which this property is exposed is available on the Géorisques website: www.georisques.gouv.fr


Real estate agency registered with the Ajaccio Trade and Companies Register under number 949401459 - Professional License No. 20012023000000007

TRAD_SIROCCO_Caracteristique Valeurs
Code postal 20110
Surface habitable (m²) 91 m²
Surface loi Carrez (m²) 90 m²
Nombre de chambre(s) 3
Nombre de pièces 4
Ascenseur NON
Vue Mer et montagnes
TRAD_SIROCCO_Caracteristique Valeurs
Nb de salle de bains 1
Nb de salle d'eau 1
Cuisine Sans
Mode de chauffage Climatisation, Electrique
Type de chauffage Air pulsé, Radiateur
Format de chauffage Individuel, Individuel
Interphone NON
Visiophone NON
Balcon NON
Loggia NON
Terrasse OUI
Murs mitoyens 1
Cave NON
Nombre de parking 2
Exposition Nord-Ouest
Année de construction 2025
TRAD_SIROCCO_Caracteristique Valeurs
Copropriété OUI
Lot n° 3
nombre de lots 9
plan de sauvegarde NON
TRAD_SIROCCO_Caracteristique Valeurs
Prix de vente 459 800 €

Frais d'agence inclus

Les honoraires d'agence seront intégralement à la charge du vendeur  
DPE GES
DPE en cours
  • Commerces et santé
  • Loisirs
  • Ecoles
  • Transports
  • Pratique

Nos outils

Imprimer
Intéressé(e) par Ce bien ?

* Champs obligatoires

contacter l'agence

Les informations recueillies sur ce formulaire sont enregistrées dans un fichier informatisé par La Boite Immo agissant comme Sous-traitant du traitement pour la gestion de la clientèle/prospects de l'Agence / du Réseau qui reste Responsable du Traitement de vos Données personnelles. La base légale du traitement repose sur l'intérêt légitime de l'Agence / du Réseau. Elles sont conservées jusqu'à demande de suppression et sont destinées à l'Agence / au Réseau. Conformément à la loi « informatique et libertés », vous disposez des droits d’accès, de rectification, d’effacement, d’opposition, de limitation et de portabilité de vos données. Vous pouvez retirer votre consentement à tout moment en contactant directement l’Agence / Le Réseau. Consultez le site https://cnil.fr/fr pour plus d’informations sur vos droits. Si vous estimez, après avoir contacté l'Agence / le Réseau, que vos droits « Informatique et Libertés » ne sont pas respectés, vous pouvez adresser une réclamation à la CNIL. Nous vous informons de l’existence de la liste d'opposition au démarchage téléphonique « Bloctel », sur laquelle vous pouvez vous inscrire ici : https://www.bloctel.gouv.fr Dans le cadre de la protection des Données personnelles, nous vous invitons à ne pas inscrire de Données sensibles dans le champ de saisie libre.
Ce site est protégé par reCAPTCHA, les Politiques de Confidentialité et les Conditions d'Utilisation de Google s'appliquent.

Nous suivre sur